Model Italianate Clematis II
North Palm Beach County, Florida New Homes for Sale
North Palm Beach County, Florida New Homes for Sale
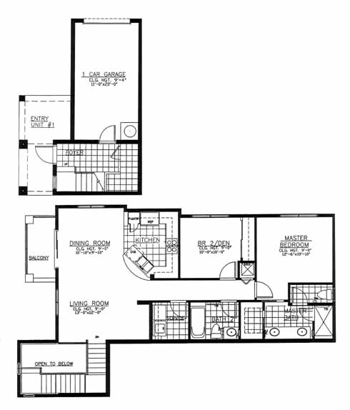
2 Bedroom, 2.5 Bath, 2 Car Garage
1610 - Square Feet
$465,780
Model Italianate Clematis II - North Palm Beach County, Florida New Homes for Sale
2 Bedroom, 2.5 Bath, 2 Car Garage
1610 - Square Feet
$465,780
Area: North Palm Beach County, Florida
Peaceful preserves and pristine lakes can be found within this gated community of beautiful homes where nature and modern living blend together brilliantly. Enjoy wooded walking trails around the 36-acre fresh-water lake where you can fish, canoe or relax on a paddle boat. The clubhouse includes a town hall, aerobics and athletics studios. Luxury living at its best can be enjoyed in this exquisite community that is conveniently located near area shopping and fine dining establishments.
This condominium home has living and dining rooms at the foyer entrance where guests will be comfortably entertained. The kitchen includes a pantry and nook area. The first-floor master suite includes a private bath with double vanity and walk-in closet. The second floor loft area makes for a nice fitness room or home office. A second bedroom with walk-in closet and a bath round out the second floor.
Please complete the form below to get more information on Model Italianate Clematis II and other available new home listings from a local North Palm Beach County, Florida Real Estate Agent
Contact a local North Palm Beach County, FL Real Estate Agent
(Please enter all fields.)
Italianate Clematis II in North Palm Beach County
Featured New Home
Featured Mortgage Brokers
- DITECH MORTGAGE CORP, FORT WASHINGTON, PA
1100 VIRGINIA DR STE 100
FORT WASHINGTON, PA 19034 - HIGH TECH LENDING INC, CITRUS HEIGHTS, CA
7777 GREENBACK LN STE 210
CITRUS HEIGHTS, CA 95610 - CASTLE & COOKE MORTGAGE LLC, GREENWOOD VILLAGE, CO
7400 E ORCHARD RD # 2900N
GREENWOOD VILLAGE, CO 80111 - GENERATION MORTGAGE COMPANY, HILO, HI
1257 KILAUEA AVE STE 30
HILO, HI 96720 - Priority Mortgage Corp., mortgage broker in Worthington, OH
150 E Wilson Bridge Rd Ste 350
Worthington, OH 43085
