Model Matisse
North Palm Beach County, Florida New Homes for Sale
North Palm Beach County, Florida New Homes for Sale
5 Bedroom, 3.5 Bath, 2 Car Garage
3933 - Square Feet
$549,990
Model Matisse - North Palm Beach County, Florida New Homes for Sale
5 Bedroom, 3.5 Bath, 2 Car Garage
3933 - Square Feet
$549,990
Area: North Palm Beach County, Florida
This gated community features a luxurious clubhouse that offers limitless social, recreational and relaxation opportunities. Enjoy a game of billiards, relax by the pool or work up a sweat in the fitness center. The gorgeous boulevard entrance has a palm-lined drive and tiered fountains that lead you to beautiful homes with professionally landscaped grounds. Located in a reputable school district while being close to area shopping and restaurants.
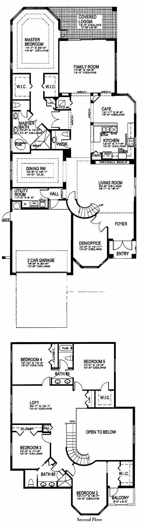
This home has a den to one side of the foyer entrance that makes a nice office or reading room. The living room leads to the formal dining room. The kitchen includes a pantry, ample counterspace and views of the cafe area. The family room in the back is a nice spot for relaxing on the weekend and includes access to the covered loggia. The first-floor master bedroom includes his and her walk-in closets and a master bath with double vanity and Roman tub. The second floor has two bedrooms that share a Jack-n-Jill bath and two more bedrooms that have private balconies while sharing a bath.
Please complete the form below to get more information on Model Matisse and other available new home listings from a local North Palm Beach County, Florida Real Estate Agent
Contact a local North Palm Beach County, FL Real Estate Agent
(Please enter all fields.)
Matisse in North Palm Beach County
Featured New Home
Featured Mortgage Brokers
- RESIDENTIAL HOME FUNDING CORPORATION, BLUE BELL, PA
1787 SENTRY PKWY W BLDG 18-130
BLUE BELL, PA 19422 - CASTLE & COOKE MORTGAGE LLC, GREENWOOD VILLAGE, CO
7400 E ORCHARD RD # 2900N
GREENWOOD VILLAGE, CO 80111 - DITECH MORTGAGE CORP, FORT WASHINGTON, PA
1100 VIRGINIA DR STE 100
FORT WASHINGTON, PA 19034 - PROSPECT MORTGAGE LLC, NORTH CHESTERFIELD, VA
7401 BEAUFONT SPRINGS DR STE 2
NORTH CHESTERFIELD, VA 23225 - GENERATION MORTGAGE COMPANY, ATLANTA, GA
3 PIEDMONT CTR NE STE 300
ATLANTA, GA 30305
