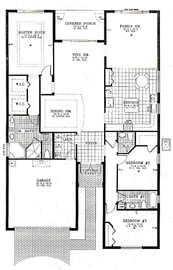
Model St Kitts
North Palm Beach County, Florida New Homes for Sale
North Palm Beach County, Florida New Homes for Sale
3 Bedroom, 2.5 Bath, 2 Car Garage
2255 - Square Feet
$390,990
Model St Kitts - North Palm Beach County, Florida New Homes for Sale
3 Bedroom, 2.5 Bath, 2 Car Garage
2255 - Square Feet
$390,990
Area: North Palm Beach County, Florida
Formal living room, dining room, family room has vaulted ceiling, spacious eat in kitchen, large 3 bedrooms with ample closet space, beautiful master suite features two walk in closets, 2 1/2 baths, covered porch, laundry room, 2 car garage.
Please complete the form below to get more information on Model St Kitts and other available new home listings from a local North Palm Beach County, Florida Real Estate Agent
Contact a local North Palm Beach County, FL Real Estate Agent
(Please enter all fields.)
St Kitts in North Palm Beach County
Featured New Home
Featured Mortgage Brokers
- BANK OF AMERICA NA CHARLOTTE, FOREST HILLS, NY
10510 QUEENS BLVD STE 2
FOREST HILLS, NY 11375 - PINNACLE CAPITAL MORTGAGE CORPORATION, PUYALLUP, WA
311 RIVER RD STE 202
PUYALLUP, WA 98371 - BANK OF ENGLAND, OLD SAYBROOK, CT
44 POND RD
OLD SAYBROOK, CT 6475 - PRIMELENDING A PLAINSCAPITAL COMPANY, NORTH SYRACUSE, NY
6702 BUCKLEY RD STE 140
NORTH SYRACUSE, NY 13212 - WESTSTAR MORTGAGE CORP, TUMWATER, WA
2620 R W JOHNSON RD SW # 104
TUMWATER, WA 98512
