Model St James
North Palm Beach County, Florida New Homes for Sale
North Palm Beach County, Florida New Homes for Sale
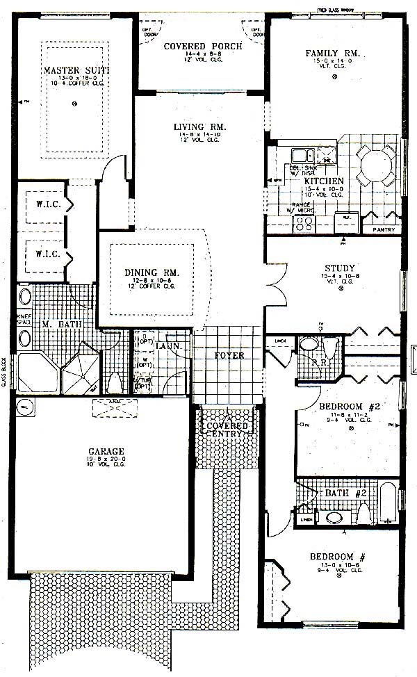
3 Bedroom, 2.5 Bath, 2 Car Garage
2255 - Square Feet
$390,990
Model St James - North Palm Beach County, Florida New Homes for Sale
3 Bedroom, 2.5 Bath, 2 Car Garage
2255 - Square Feet
$390,990
Area: North Palm Beach County, Florida
Three bedrooms, two 1/2 baths, formal living room, family room plan, with separate den, dining room, kitchen with a breakfast area and a master suite so spacious you'll enjoy it, just relaxing with a good book for hours. Two car garage, covered porch is also included with this plan.
Please complete the form below to get more information on Model St James and other available new home listings from a local North Palm Beach County, Florida Real Estate Agent
Contact a local North Palm Beach County, FL Real Estate Agent
(Please enter all fields.)
St James in North Palm Beach County
Featured New Home
Featured Mortgage Brokers
- GENERATION MORTGAGE COMPANY, ATLANTA, GA
3 PIEDMONT CTR NE STE 300
ATLANTA, GA 30305 - OPEN MORTGAGE LLC, CORONA, CA
1840 ROCKCREST DR
CORONA, CA 92880 - VENTA FINANCIAL GROUP INC, LAS VEGAS, NV
1300 S JONES BLVD STE 150
LAS VEGAS, NV 89146 - ACADEMY MORTGAGE CORPORATION, CINCINNATI, OH
11590 CENTURY BLVD STE 112
CINCINNATI, OH 45246 - Ross Mortgage Corporation, mortgage broker in Royal Oak, MI
27862 Woodward Avenue
Royal Oak, MI 48067
