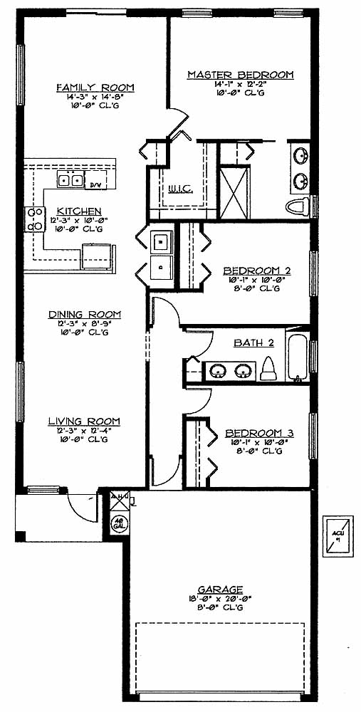
Model Brentwood
North Palm Beach County, Florida New Homes for Sale
North Palm Beach County, Florida New Homes for Sale
4 Bedroom, 2.5 Bath, 2 Car Garage
1874 - Square Feet
$416,990
Model Brentwood - North Palm Beach County, Florida New Homes for Sale
4 Bedroom, 2.5 Bath, 2 Car Garage
1874 - Square Feet
$416,990
Area: North Palm Beach County, Florida
This home is located in a gated community with a community pool, and sunder. Nearby you will find excellent schools. The home has, beautifully textured stucco walls, sturdy masonry concrete block construction, a designer kitchen with you choice of wood or laminate cabinetry, and Whirlpool appliances.
Please complete the form below to get more information on Model Brentwood and other available new home listings from a local North Palm Beach County, Florida Real Estate Agent
Contact a local North Palm Beach County, FL Real Estate Agent
(Please enter all fields.)
Brentwood in North Palm Beach County
Featured New Home
Featured Mortgage Brokers
- LIBERTY HOME EQUITY SOLUTIONS INC, STAMFORD, CT
263 TRESSER BLVD FL 9
STAMFORD, CT 6901 - Mainstream Funding Network, Inc., mortgage broker in Williamsville, NY
5586 Main St.
Williamsville, NY 14221 - FIRST HERITAGE FINANCIAL, LLC, TREVOSE, PA
2655 NESHAMINY INTERPLEX DR
TREVOSE, PA 19053 - EMBRACE HOME LOANS INC, MIDDLETOWN, RI
25 ENTERPRISE CTR
MIDDLETOWN, RI 2842 - Harvard Mortgage, mortgage broker in Albuquerque, NM
9551 Paseo del Norte NE
Albuquerque, NM 87122
