Model Edison
North Palm Beach County, Florida New Homes for Sale
North Palm Beach County, Florida New Homes for Sale
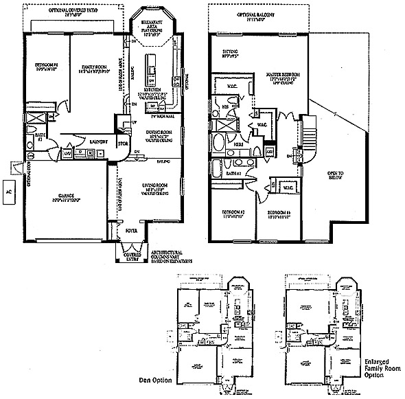
4 Bedroom, 3 Bath, 2 Car Garage
2945 - Square Feet
$427,900
Model Edison - North Palm Beach County, Florida New Homes for Sale
4 Bedroom, 3 Bath, 2 Car Garage
2945 - Square Feet
$427,900
Area: North Palm Beach County, Florida
Garage entry into large laundry room with extra storage. Roomy family room opens to island style kitchen with bay window breakfast area. Living and dining areas have vaulted ceilings. One bedroom and full bath on first floor. Master suite upstairs. Large bedroom/sitting area/large walk-in closets and luxurious his/hers bath set up. Two other bedrooms share another full bath. Options available with the design.
Please complete the form below to get more information on Model Edison and other available new home listings from a local North Palm Beach County, Florida Real Estate Agent
Contact a local North Palm Beach County, FL Real Estate Agent
(Please enter all fields.)
Edison in North Palm Beach County
Featured New Home
Featured Mortgage Brokers
- GENERATION MORTGAGE COMPANY, ATLANTA, GA
3 PIEDMONT CTR NE STE 300
ATLANTA, GA 30305 - AMERICAN BANK, ROCKVILLE, MD
9201 CORPORATE BLVD STE 130
ROCKVILLE, MD 20850 - ENVOY MORTGAGE LTD, COLORADO SPRINGS, CO
6760 CORPORATE DR STE 130
COLORADO SPRINGS, CO 80919 - LIBERTY HOME EQUITY SOLUTIONS INC, STAMFORD, CT
263 TRESSER BLVD FL 9
STAMFORD, CT 6901 - Ross Mortgage Corporation, mortgage broker in Royal Oak, MI
27862 Woodward Avenue
Royal Oak, MI 48067
