Model Lexington
North Palm Beach County, Florida New Homes for Sale
North Palm Beach County, Florida New Homes for Sale
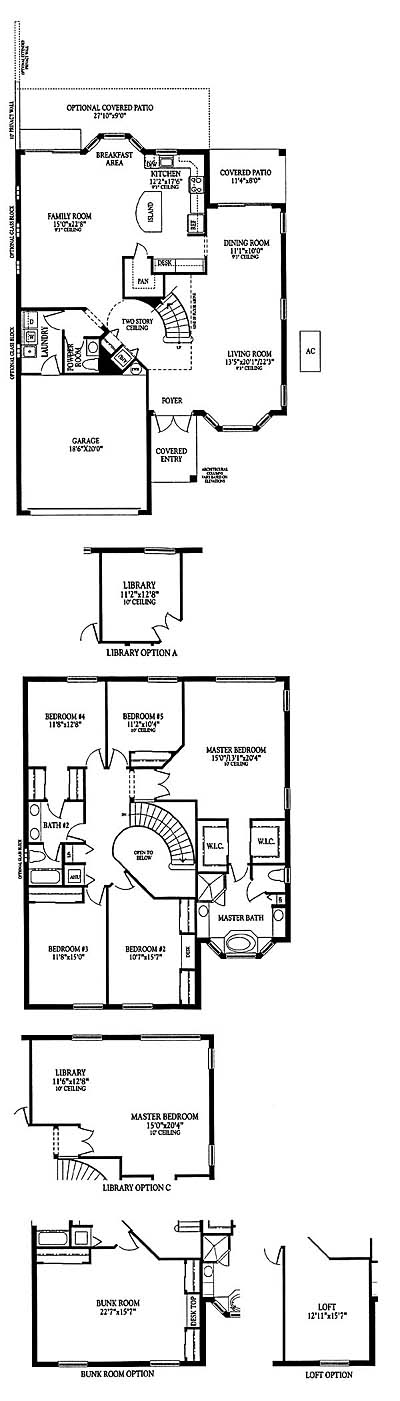
5 Bedroom, 2.5 Bath, 2 Car Garage
3096 Sq. Ft. under heat and air.
$459,900
Model Lexington - North Palm Beach County, Florida New Homes for Sale
5 Bedroom, 2.5 Bath, 2 Car Garage
3096 Sq. Ft. under heat and air.
$459,900
Area: North Palm Beach County, Florida
Impressive family home with curved staircase, large island kitchen, superior master suite and several options to choose from. Master planned community with a huge recreation area, sensational pool, social pavilion and nearly 80 acres of glistening lakes.
Please complete the form below to get more information on Model Lexington and other available new home listings from a local North Palm Beach County, Florida Real Estate Agent
Contact a local North Palm Beach County, FL Real Estate Agent
(Please enter all fields.)
Lexington in North Palm Beach County
Featured New Home
Featured Mortgage Brokers
- Consolidated Loan Company of Albany- Home Office, mortgage broker in Albany, GA
430 W Tift Ave
Albany, GA 31701 - TOP FLITE FINANCIAL INC, FORT LAUDERDALE, FL
33 NE 2ND ST STE 100
FORT LAUDERDALE, FL 33301 - MOVEMENT MORTGAGE LLC, GASTONIA, NC
1000 S NEW HOPE RD
GASTONIA, NC 28054 - GUARANTEED RATE INC, PARSIPPANY, NJ
322 ROUTE 46 STE 170
PARSIPPANY, NJ 7054 - AMERICAN NATIONWIDE MORTGAGE COMPANY INC, LITTLE RIVER, SC
2220 HIGHWAY 17
LITTLE RIVER, SC 29566
