Model Magnolia
Newberry, Florida New Homes for Sale
Newberry, Florida New Homes for Sale
4 Bedroom, 4 Bath, 2 Car Garage
2890 Square Feet
$404,000
Model Magnolia - Newberry, Florida New Homes for Sale
4 Bedroom, 4 Bath, 2 Car Garage
2890 Square Feet
$404,000
Area: Newberry, Florida
This exquisite community has a gated entrance that leads you to heavily wooded homesites and surroundings. Attractive cottage homes make up this enclave that offers up quiet, elegant living. Located near area shopping, restaurants and schools.
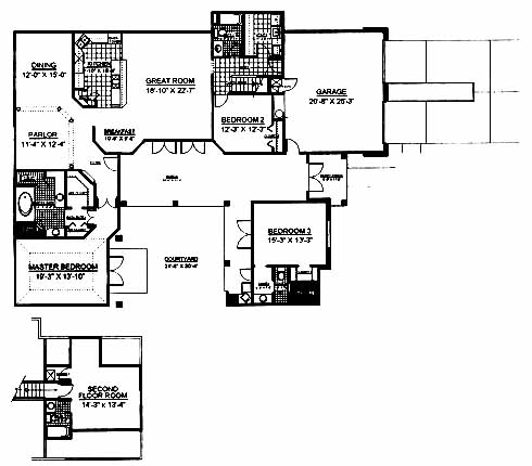
This home has a beautiful private porch and courtyard upon passing through the entry porch. Once inside the home, a parlor and dining room are at the foyer entrance. The kitchen with pantry and bar-top leads to the breakfast room. The great room is perfect for entertaining guests and includes access to the porch through French doors. The master bedroom includes his and her closets and a master bath with dual vanities, a soaking tub and separate shower. A second bedroom at the opposite end of the home has close access to a bath and to the utility room. A bedroom separate from the rest of the home makes a nice guest suite with its own bath. A second floor bedroom with bath rounds out this attractive home.
Please complete the form below to get more information on Model Magnolia and other available new home listings from a local Newberry, Florida Real Estate Agent
Contact a local Newberry, FL Real Estate Agent
(Please enter all fields.)
Magnolia in Newberry
Featured New Home
Featured Real Estate Agents
Beth Graetz
Berkshire Hathaway Trend Realty

Phone: (352) 745-3823
Gainesville, FL
[email protected]
Lew Henderson
Lew Henderson

Phone: (352) 231-8754
Gainesville, FL
David Padot
Pristine Country Realty, Inc.

Phone: (352) 553-4942
Fanning Springs, FL
[email protected]
Gia and Scott Arvin
Matchmaker Realty

Phone: (352) 231-8673
Gainesville, FL
[email protected]
Tom and Trish Reilly
Tioga Realty

Phone: (352) 448-1740
Newberry, FL
[email protected]
Featured Mortgage Brokers
- ALCOVA MORTGAGE LLC, ROANOKE, VA
305 MARKET ST SE STE 204
ROANOKE, VA 24011 - DITECH MORTGAGE CORP, FORT WASHINGTON, PA
1100 VIRGINIA DR STE 100
FORT WASHINGTON, PA 19034 - SUMMIT MORTGAGE INC, FORT WAYNE, IN
8614 SAINT JOE RD
FORT WAYNE, IN 46835 - PRIMELENDING A PLAINSCAPITAL COMPANY, INDIANAPOLIS, IN
50 E 91ST ST STE 300
INDIANAPOLIS, IN 46240 - CARLILE PROPERTIES, SACRAMENTO, CA
1009 22ND STREET, 3A
SACRAMENTO, CA 95816
