Model Santa Monica
Lake County, Florida New Homes for Sale
                                                                                        
                                        Lake County, Florida New Homes for Sale
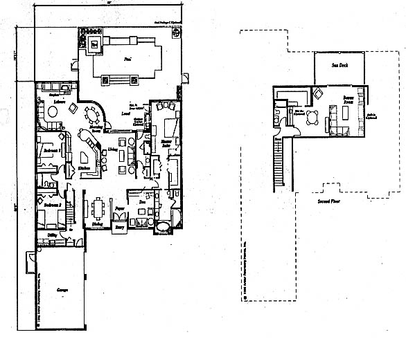
                                            5 Bedroom, 4 Bath, 3 Car Garage
3451 sq. feet (heated & cooled)
$472,285
                                            
Model Santa Monica - Lake County, Florida New Homes for Sale
                                        5 Bedroom, 4 Bath, 3 Car Garage
3451 sq. feet (heated & cooled)
$472,285
Area: Lake County, Florida
The Santa Monica is a dramatic two story waterfront home. The front elevation design includes traditional stone, a walled motor court and a steep tiled roof. All interior living spaces offer a vista of the pool and waterway.
Please complete the form below to get more information on Model Santa Monica and other available new home listings from a local Lake County, Florida Real Estate Agent
Contact a local Lake County, FL Real Estate Agent
(Please enter all fields.)
Santa Monica in Lake County
Featured New Home
								Featured Real Estate Agents
Michele Lowe
Dave Lowe Realty
                                            
                                            Phone: (855) 464-6693
                                            Mount Dora,  FL
                                                                                        [email protected]
                                                                                        
Addie Owens
RE/MAX Realty Center International
                                            
                                            Phone: (352) 223-0053
                                            Eustis,  FL
                                                                                        [email protected]
                                                                                        
Kris Persaud
Watson Realty Corp.
                                            
                                            Phone: (407) 255-2310
                                            Clermont,  FL
                                                                                        [email protected]
                                                                                        
Loretta Maimone
ERA Grizzard Real Estate
                                            
                                            Phone: (352) 275-5946
                                            Mount Dora,  FL
                                                                                        [email protected]
                                                                                        
Marilyn Morris
ERA Grizzard Real Estate
                                            
                                            Phone: (352) 366-0213
                                            Leesburg,  FL
                                                                                        [email protected]
                                                                                        
Featured Mortgage Brokers
- SYNOVUS MORTGAGE CORP, ROSWELL, GA
10446 ALPHARETTA ST
ROSWELL, GA 30075 - KENTUCKY HOUSING CORPORATION, FRANKFORT, KY
1231 LOUISVILLE RD
FRANKFORT, KY 40601 - VENTA FINANCIAL GROUP INC, LAS VEGAS, NV
1300 S JONES BLVD STE 150
LAS VEGAS, NV 89146 - 203K.TV, LAGUNA HILLS, CA
22501 CAMINITO COSTA
LAGUNA HILLS, CA 92653 - EMBRACE HOME LOANS INC, MIDDLETOWN, RI
25 ENTERPRISE CTR
MIDDLETOWN, RI 2842 
