Model St. James
Flagler County, Florida New Homes for Sale
Flagler County, Florida New Homes for Sale
3 Bedroom, 2 Bath, 2 Car Garage
2010 - Square Feet
$207,200
Model St. James - Flagler County, Florida New Homes for Sale
3 Bedroom, 2 Bath, 2 Car Garage
2010 - Square Feet
$207,200
Area: Flagler County, Florida
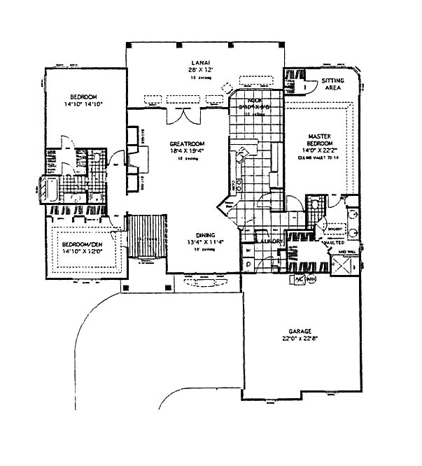
This is a 2000 acre golf community located in an area of large oaks and is bordered by two state parks. Minutes from the beach and shopping. Large clubhouse is adjacent to the golf course pool. Fitness center and tennis bays are part of the clubhouse complex. This private community includes underground utilities, sidewalks, cable TV and miles of paths for jogging and bike riding. All bedrooms in the St. James are quite large with large closets. Garage is oversize allowing for two cars and a golf cart. The floor is tiled in the kitchen and nook. The master bedroom has a large sitting area surrounded by glass. There are two closets in the master bedroom, one in the bath and one in the sitting area. Ten foot ceilings in most of the house including the lanai. Master bath has a skylight. An eyebrow window gives the dining room extra brightness. French doors in the great room lead to the lanai.
Please complete the form below to get more information on Model St. James and other available new home listings from a local Flagler County, Florida Real Estate Agent
Contact a local Flagler County, FL Real Estate Agent
(Please enter all fields.)
St. James in Flagler County
Featured New Home
Featured Real Estate Agents
Terry Mrochko and Team
Everest Realty

Phone: (248) 648-3203
PALM COAST, FL
Elena Tchoumakova
APEX REALTY LLC

Phone: (386) 986-5053
Palm Coast, FL
[email protected]
Steven Thomas and Bruce Garrison
Trademark Realty Group of Palm Coast

Phone: (386) 319-0308
Flagler Beach, FL
[email protected]
Annette Gardinal
RE/MAX Flagstaff

Phone: (386) 931-0485
Palm Coast, FL
Mari Parks
Take Action Properties

Phone: (386) 267-4452
Palm Coast, FL
[email protected]
Featured Mortgage Brokers
- ACADEMY MORTGAGE CORPORATION, CINCINNATI, OH
11590 CENTURY BLVD STE 112
CINCINNATI, OH 45246 - LEADER ONE FINANCIAL CORPORATION, OVERLAND PARK, KS
11020 KING ST STE 390
OVERLAND PARK, KS 66210 - OPEN MORTGAGE LLC, CORONA, CA
1840 ROCKCREST DR
CORONA, CA 92880 - VENTA FINANCIAL GROUP INC, LAS VEGAS, NV
1300 S JONES BLVD STE 150
LAS VEGAS, NV 89146 - AMERICAN MIDWEST MTG CORP, CLEVELAND, OH
6363 YORK RD STE 300
CLEVELAND, OH 44130
