Model Catalina
Flagler County, Florida New Homes for Sale
Flagler County, Florida New Homes for Sale
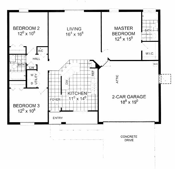
3 Bedroom, 2 Bath, 2 Car Garage
1283 - Square Feet
$123,400
Model Catalina - Flagler County, Florida New Homes for Sale
3 Bedroom, 2 Bath, 2 Car Garage
1283 - Square Feet
$123,400
Area: Flagler County, Florida
Palm Coast has a number of communities that the Catalina would fit into. This community is close to everything: 20 minutes from Daytona, 20 minutes to St. Augustan, 90 minutes to Disney and regional shopping is only a few minutes away. This is a new community with good schools that would be perfect for any family looking to move or one just starting out.
As you enter through the foyer you move past the kitchen on your right and 2 bedrooms, hall bath and utility closet on your left. Next into the large living room that is open to the tiled kitchen and onto the master bedroom with walk-in closet and master bath. This home can also be built with a screened in pool.
Please complete the form below to get more information on Model Catalina and other available new home listings from a local Flagler County, Florida Real Estate Agent
Contact a local Flagler County, FL Real Estate Agent
(Please enter all fields.)
Catalina in Flagler County
Featured New Home
Featured Real Estate Agents
Ronald E Hamaty
Realty Atlantic LLC

Phone: (386) 931-0601
Palm Coast, FL
[email protected]
Elena Tchoumakova
APEX REALTY LLC

Phone: (386) 986-5053
Palm Coast, FL
[email protected]
Mari Parks
Take Action Properties

Phone: (386) 267-4452
Palm Coast, FL
[email protected]
Dottie Dills
Real Living Palm West Home Realty

Phone: (386) 530-6537
Palm West, FL
Steven Thomas and Bruce Garrison
Trademark Realty Group of Palm Coast

Phone: (386) 319-0308
Flagler Beach, FL
[email protected]
Featured Mortgage Brokers
- Priority Mortgage Corp., mortgage broker in Worthington, OH
150 E Wilson Bridge Rd Ste 350
Worthington, OH 43085 - WELLS FARGO BANK NA, DES MOINES, IA
1 HOME CAMPUS # 4801-196
DES MOINES, IA 50328 - FIDELITY BANK, ATHENS, GA
1045 S MILLEDGE AVE STE 200
ATHENS, GA 30605 - BANK OF AMERICA NA CHARLOTTE, FOREST HILLS, NY
10510 QUEENS BLVD STE 2
FOREST HILLS, NY 11375 - TOP FLITE FINANCIAL INC, WATERFORD, MI
5663 HIGHLAND RD
WATERFORD, MI 48327
