Model Townhouse I
Broward County, Florida New Homes for Sale
Broward County, Florida New Homes for Sale
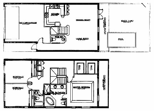
3 Bedroom, 2.5 Bath, 2 Car Garage
$449,400
Model Townhouse I - Broward County, Florida New Homes for Sale
3 Bedroom, 2.5 Bath, 2 Car Garage
$449,400
Area: Broward County, Florida
This town home community offers oversized private backyards in a neighborhood that is close to the beach, shopping centers and parks.
This townhome has living and dining rooms at the entrance that include access to the covered patio with pool and beautiful backyard. Prepare meals with ease in the kitchen that has plenty of counterspace. The second floor has all three bedrooms, including that master bedroom with his and her walk-in closets and a private bath with double vanity, tub and separate shower. A private patio is also accessible from the master bedroom.
Please complete the form below to get more information on Model Townhouse I and other available new home listings from a local Broward County, Florida Real Estate Agent
Contact a local Broward County, FL Real Estate Agent
(Please enter all fields.)
Townhouse I in Broward County
Featured New Home
Featured Real Estate Agents
The Broker Josh Blancett
Blancett Realty Inc.

Phone: (954) 500-6000
Fort Lauderdale, FL
Dean Ehrlich, PA.
RE/MAX Park Creek

Phone: (954) 866-7238
Coconut Creek, FL
[email protected]
Patty Da Silva
Green Realty Properties®

Phone: (954) 228-8927
Cooper City, FL
[email protected]
The Tello Team
Keller Williams Realty

Phone: (954) 866-7223
Pembroke Pines, FL
Teri Arbogast
Keller Williams/Teri Arbogast Team

Phone: (954) 204-3865
Davie, FL
[email protected]
Featured Mortgage Brokers
- CrossCountry Mortgage, Inc., mortgage broker in Elgin, IL
374 N Mclean Blvd
Elgin, IL 60123 - Mainstream Funding Network, Inc., mortgage broker in Williamsville, NY
5586 Main St.
Williamsville, NY 14221 - LEADER ONE FINANCIAL CORPORATION, OVERLAND PARK, KS
11020 KING ST STE 390
OVERLAND PARK, KS 66210 - OPEN MORTGAGE LLC, CORONA, CA
1840 ROCKCREST DR
CORONA, CA 92880 - PRIMELENDING A PLAINSCAPITAL COMPANY, MELVILLE, NY
200 BROADHOLLOW RD STE 207
MELVILLE, NY 11747
