Model Bertram (Condo)
Broward County, Florida New Homes for Sale
Broward County, Florida New Homes for Sale
2 Bedroom, 2.5 Bath, Car Garage
1860 - Square Feet
$888,000
Model Bertram (Condo) - Broward County, Florida New Homes for Sale
2 Bedroom, 2.5 Bath, Car Garage
1860 - Square Feet
$888,000
Area: Broward County, Florida
This condominium community includes a large boat dry storage, the only of its kind in the area. Call the concierge and have them put your boat into the water so you can spend more of your time enjoying your home. The health club on the fifth floor includes free weights, saunas and cardiovascular equipment. Enjoy the heated pool and spa or have a party in the gathering room with large plasma screen television, kitchen and bar area that is also on the fifth floor. Gorgeous views of the water while being close to restaurants, shopping and area attractions.
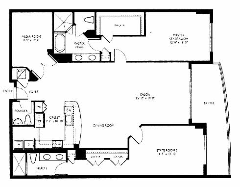
This condominium home has a kitchen to one side of the foyer that includes a pantry and access to the laundry area while overlooking the dining room. Relax in the salon that includes access to the balcony. The master bedroom has an oversized walk-in closet and private bath with double vanity. The second bedroom also has a private bath and ample closetspace, as well as private access to the balcony. Watch movies or the big game in the media room to one side of the foyer.
Please complete the form below to get more information on Model Bertram (Condo) and other available new home listings from a local Broward County, Florida Real Estate Agent
Contact a local Broward County, FL Real Estate Agent
(Please enter all fields.)
Bertram (Condo) in Broward County
Featured New Home
Featured Real Estate Agents
Sandra Milo
Serafina Realty Inc.

Phone: (954) 994-9316
Tamarac, FL
[email protected]
Dean Ehrlich, PA.
RE/MAX Park Creek

Phone: (954) 866-7238
Coconut Creek, FL
[email protected]
Tim and Rosangela Johnson
Elevate Real Estate Brokers

Phone: (954) 261-7340
Fort Lauderdale, FL
The Tello Team
Keller Williams Realty

Phone: (954) 866-7223
Pembroke Pines, FL
Teri Arbogast
Keller Williams/Teri Arbogast Team

Phone: (954) 204-3865
Davie, FL
[email protected]
Featured Mortgage Brokers
- Priority Mortgage Corp., mortgage broker in Worthington, OH
150 E Wilson Bridge Rd Ste 350
Worthington, OH 43085 - FIRST HERITAGE FINANCIAL, LLC, TREVOSE, PA
2655 NESHAMINY INTERPLEX DR
TREVOSE, PA 19053 - EQUITY LOANS LLC, NEW CITY, NY
216 CONGERS RD STE 3A
NEW CITY, NY 10956 - TOP FLITE FINANCIAL INC, WEST LINN, OR
1800 BLANKENSHIP RD STE 200
WEST LINN, OR 97068 - PINNACLE CAPITAL MORTGAGE CORPORATION, PUYALLUP, WA
311 RIVER RD STE 202
PUYALLUP, WA 98371
