Model Arezzo
Bradenton Beach, Florida New Homes for Sale
Bradenton Beach, Florida New Homes for Sale
3 Bedroom, 2 Bath, 2 Car Garage
2298 - Square Feet
$465,124
Model Arezzo - Bradenton Beach, Florida New Homes for Sale
3 Bedroom, 2 Bath, 2 Car Garage
2298 - Square Feet
$465,124
Area: Bradenton Beach, Florida
This community took everyone into consideration when it was masterfully designed. Everyone from child to grandparent will find something to do within this neighborhood. Amenities include tennis courts, aquatics center, fitness center and 45 holes of championship golf. Get out and breathe the fresh air among the six community parks, multiple lakes, nature preserves and sidewalks that connect all areas. Close to area shopping, dining establishments and schools.
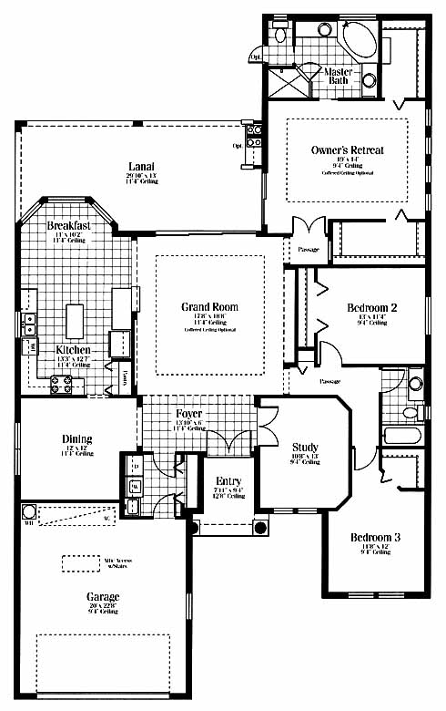
This home has a study and dining room at either side of the foyer entrance. The laundry room is also closeby and provides secondary entry to the home from the garage. The grand room includes access to the lanai outside and is a great space for entertaining guests. The kitchen with island workspace and breakfast area with bay window are to one side of the great room. To the other side are two bedrooms that share a bath and the owner's retreat with his and her walk-in closets and a private bath with tub and separate shower.
Please complete the form below to get more information on Model Arezzo and other available new home listings from a local Bradenton Beach, Florida Real Estate Agent
Contact a local Bradenton Beach, FL Real Estate Agent
(Please enter all fields.)
Arezzo in Bradenton Beach
Featured New Home
Featured Real Estate Agents
Sue Carlson
An Island Place Realty

Phone: (941) 405-0147
Anna Maria, FL
[email protected]
Kathleen White
Anna Maria Sales

Phone: (941) 405-0224
Holmes Beach, FL
[email protected]
Duane and Rhonda Finney
RE/MAX Alliance Group

Phone: (941) 782-9159
Bradenton, FL
[email protected]
Barry Gould
Island Vacation Properties

Phone: (941) 778-1000
Holmes Beach, FL
[email protected]
The Carroll Team
Michael Saunders and Company

Phone: (941) 465-8843
Bradenton, FL
[email protected]
Featured Mortgage Brokers
- TOP FLITE FINANCIAL INC, WEST LINN, OR
1800 BLANKENSHIP RD STE 200
WEST LINN, OR 97068 - FIRST PREFERENCE MTG CORP, BOWIE, MD
1525 POINTER RIDGE PL
BOWIE, MD 20716 - LEGACYTEXAS BANK, PLANO, TX
5000 LEGACY DR FL 1
PLANO, TX 75024 - EQUITY LOANS LLC, NEW CITY, NY
216 CONGERS RD STE 3A
NEW CITY, NY 10956 - ACADEMY MORTGAGE CORPORATION, CHICO, CA
1600 MANGROVE AVE STE 100
CHICO, CA 95926
