Model Vista Valley
Apopka, Florida New Homes for Sale

Apopka, Florida New Homes for Sale
3 Bedroom, 3 Bath, 2 Car Garage
2361 - Square Feet
$245,500
Model Vista Valley - Apopka, Florida New Homes for Sale
3 Bedroom, 3 Bath, 2 Car Garage
2361 - Square Feet
$245,500
Area: Apopka, Florida
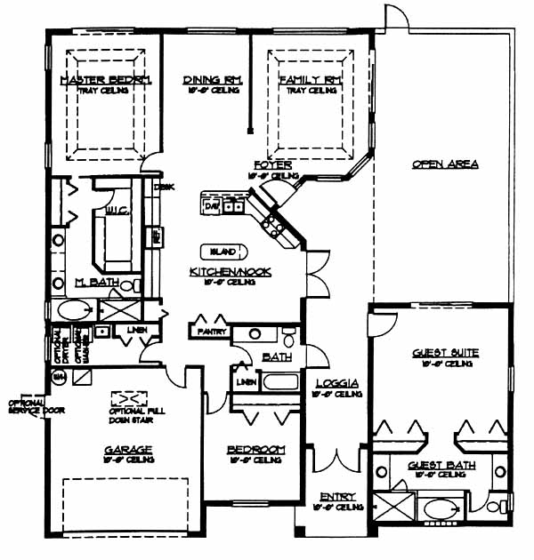
This home has a unique floor plan and is located in a golf course community! Entering through beautiful glass double doors, you are in a courtyard. To the right is a separate and sumptuous guest suite; beware, they may never leave! From the courtyard there is a door to a pool bath, double glass french doors leading into the enormous kitchen/nook and another glass door to enter the foyer. Windows surround you on three walls of the great/family room looking into the courtyard where you could have an optional pool w/waterfall. The kitchen/breakfast nook with pantry, closet & desk has counter space for any chef to envy. There is a formal dining room, another guest room or den, laundry & linen room, and the master suite. The walk-in closet is a shopper's dream! The bath has a roman tub, separate shower plus dual vanities and another closet. Both the master and the great room have tray ceilings 10' ceilings in all of the other rooms.
Please complete the form below to get more information on Model Vista Valley and other available new home listings from a local Apopka, Florida Real Estate Agent
Contact a local Apopka, FL Real Estate Agent
(Please enter all fields.)
Vista Valley in Apopka
Featured New Home

Featured Real Estate Agents
Jamie Ampel Team
A2S, All Sellers & Buyers Realty
Phone: (321) 256-4744
Apopka, FL
Todd Schroth
RE/MAX Central Realty
Phone: (321) 300-1456
Altamonte Springs, FL
[email protected]
Rick Belben
Belben Realty Group
Phone: (321) 270-8111
Apopka, FL
[email protected]
Aaron Mighty
Mighty Realty Inc.
Phone: (407) 914-7799
Apopka, FL
[email protected]
Daniel Betancourt
RE/MAX Central Realty
Phone: (321) 710-5949
Altamonte Springs, FL
[email protected]
Featured Mortgage Brokers
- CrossCountry Mortgage, Inc., mortgage broker in Elgin, IL
374 N Mclean Blvd
Elgin, IL 60123 - M/I Financial, LLC, mortgage broker in Columbus, OH
3 Easton Oval Ste 340
Columbus, OH 43219 - AMERICAN MIDWEST MTG CORP, CLEVELAND, OH
6363 YORK RD STE 300
CLEVELAND, OH 44130 - ENVOY MORTGAGE LTD, COLORADO SPRINGS, CO
6760 CORPORATE DR STE 130
COLORADO SPRINGS, CO 80919 - ACADEMY MORTGAGE CORPORATION, CHICO, CA
1600 MANGROVE AVE STE 100
CHICO, CA 95926