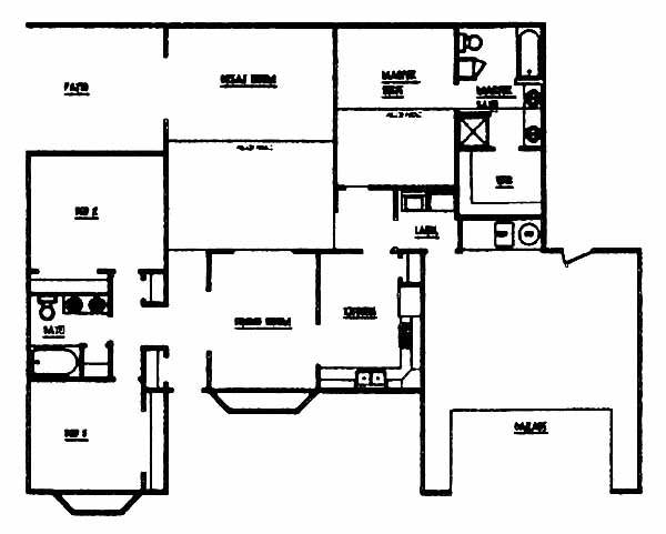
Model Plan 1663
Mesa County, Colorado New Homes for Sale
Mesa County, Colorado New Homes for Sale
3 Bedroom, 2 Bath, 2 Car Garage
1663 - Square Feet
$164,900
Model Plan 1663 - Mesa County, Colorado New Homes for Sale
3 Bedroom, 2 Bath, 2 Car Garage
1663 - Square Feet
$164,900
Area: Mesa County, Colorado
A very nice subdivision surrounded by fields, near the Colorado River Trail, with great views.
This ranch home is built on a large lot, has brick and vinyl siding, a huge walk-in closet in the master suite. Underground pressurized irrigation.
Please complete the form below to get more information on Model Plan 1663 and other available new home listings from a local Mesa County, Colorado Real Estate Agent
Contact a local Mesa County, CO Real Estate Agent
(Please enter all fields.)
Plan 1663 in Mesa County
Featured New Home
Featured Real Estate Agents
Danny Kuta
RE/MAX 4000 Inc.

Phone: (970) 305-5644
GRAND JUNCTION, CO
[email protected]
Christi Reece Group
Bray Real Estate

Phone: (970) 425-4789
Grand Junction, CO
[email protected]
Jim Brunswick
RE/MAX 4000, Inc

Phone: (970) 658-2840
Grand Junction, CO
Anna Rickenbach
RE/MAX 4000, Inc.

Phone: (970) 616-6290
GRAND JCT, CO
Dave Kimbrough
The Kimbrough Team

Phone: (970) 263-7355
Grand Junction, CO
[email protected]
Featured Mortgage Brokers
- PROSPECT MORTGAGE LLC, NORTH CHESTERFIELD, VA
7401 BEAUFONT SPRINGS DR STE 2
NORTH CHESTERFIELD, VA 23225 - PROFICIO MORTGAGE VENTURES LLC, BRUNSWICK, OH
2950 WESTWAY DR STE 101
BRUNSWICK, OH 44212 - Priority Mortgage Corp., mortgage broker in Worthington, OH
150 E Wilson Bridge Rd Ste 350
Worthington, OH 43085 - M AND T BANK, CHEEKTOWAGA, NY
80 HOLTZ DR STE 2
CHEEKTOWAGA, NY 14225 - GATEWAY FUNDING DIVERSIFIED MTG SRVS LP, CARMEL, IN
600 E CARMEL DR STE 169
CARMEL, IN 46032
