Model Keystone
Fort Collins, Colorado New Homes for Sale
Fort Collins, Colorado New Homes for Sale
3 Bedroom, 3 Bath, 2 Car Garage
1449 - Square Feet
$209,450
Model Keystone - Fort Collins, Colorado New Homes for Sale
3 Bedroom, 3 Bath, 2 Car Garage
1449 - Square Feet
$209,450
Area: Fort Collins, Colorado
Situated on the south west side of Fort Collins with the foothills in close proximity to the west, this community offers amenities with the home owners association.
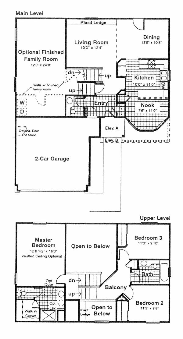
A multi-level home with room to expand. Upon entering you have a half bath and the stairs up and down. There is a nice kitchen with eating area and more formal dining with an open living room. You can go down 1 level to an unfinished family room then down again to 725 square foot unfinished basement. Up from the main level is the master suite with 3/a bath and the next level has two secondary bedrooms and full bath. All this plus a 2-car garage.
Please complete the form below to get more information on Model Keystone and other available new home listings from a local Fort Collins, Colorado Real Estate Agent
Contact a local Fort Collins, CO Real Estate Agent
(Please enter all fields.)
Keystone in Fort Collins
Featured New Home
Featured Real Estate Agents
Dennis Schick
Re/Max Alliance

Phone: (970) 567-3942
Fort Collins, CO
[email protected]
Susan Wahle
RE/MAX Alliance

Phone: (970) 670-7133
Fort Collins, CO
[email protected]
Angie Spangler
RE/MAX Advanced, Inc.

Phone: (970) 402-6430
Fort Collins, CO
Jesse Laner John Simmons
C3 Real Estate Solutions

Phone: (970) 644-6685
Fort Collins, CO
[email protected]
Carrie Holmes
Coldwell Banker Devonshire

Phone: (970) 988-0242
Fort Collins, CO
[email protected]
Featured Mortgage Brokers
- TOP FLITE FINANCIAL INC, FORT LAUDERDALE, FL
33 NE 2ND ST STE 100
FORT LAUDERDALE, FL 33301 - CSTONE MORTGAGE INC, SAN DIEGO, CA
4545 MURPHY CANYON RD STE 213
SAN DIEGO, CA 92123 - MCCUE MORTGAGE COMPANY, NEW BRITAIN, CT
1 LIBERTY SQ
NEW BRITAIN, CT 6051 - FINANCIAL FREEDOM ACQUISITION LLC, IRVINE, CA
1 BANTING
IRVINE, CA 92618 - TOP FLITE FINANCIAL INC, WEST LINN, OR
1800 BLANKENSHIP RD STE 200
WEST LINN, OR 97068
