Model Logan
Denver County, Colorado New Homes for Sale
Denver County, Colorado New Homes for Sale
3 Bedroom, 2.5 Bath, 2 Car Garage
2331 - Square Feet
$375,900
Model Logan - Denver County, Colorado New Homes for Sale
3 Bedroom, 2.5 Bath, 2 Car Garage
2331 - Square Feet
$375,900
Area: Denver County, Colorado
This centrally located planned community features plenty of open space, new parks and unique plans that are sure to be attractive to you and your family. Also located within walking distance of shops and offices and convenient to downtown Denver.
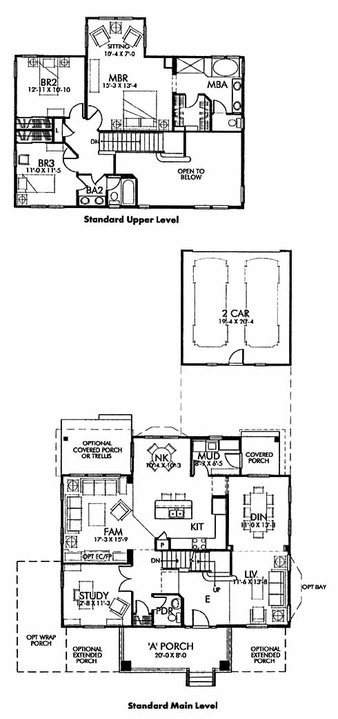
The entry flanked by the living room and study takes you into the kitchen with island and breakfast nook. From the kitchen you can access the dining room, mud room and the family room with optional entertainment center and fireplace. Upstairs you'll find the 2nd and 3rd bedrooms, hall bath and the master bedroom with sitting area and master bath with dual vanities and a walk-in closet.
Please complete the form below to get more information on Model Logan and other available new home listings from a local Denver County, Colorado Real Estate Agent
Contact a local Denver County, CO Real Estate Agent
(Please enter all fields.)
Logan in Denver County
Featured New Home
Featured Real Estate Agents
Wayne Keith
Innovative Real Estate Group

Phone: (720) 410-5823
Denver, CO
[email protected]
Kimberly Austin
ERA Herman Group Real Estate

Phone: (303) 586-3560
Denver, CO
[email protected]
Jody E Donley
New Perspective Real Estate, LLC

Phone: (720) 262-5241
Denver, CO
[email protected]
Joe Phillips
Synergy Real Estate Team

Phone: (720) 299-1730
Parker, CO
[email protected]
David Ness
Thrive Real Estate

Phone: (303) 946-1840
Denver, CO
[email protected]
Featured Mortgage Brokers
- CARLILE PROPERTIES, SACRAMENTO, CA
1009 22ND STREET, 3A
SACRAMENTO, CA 95816 - AMERICAN MIDWEST MTG CORP, CLEVELAND, OH
6363 YORK RD STE 300
CLEVELAND, OH 44130 - PRIMARY RESIDENTIAL MORTGAGE INC, MIAMI, FL
7300 N KENDALL DR STE 340
MIAMI, FL 33156 - PRIMARY RESIDENTIAL MORTGAGE INC, MANCHESTER, CT
63 E CENTER ST FL 3
MANCHESTER, CT 6040 - LIBERTY HOME EQUITY SOLUTIONS INC, STAMFORD, CT
263 TRESSER BLVD FL 9
STAMFORD, CT 6901
