Model Masterful B
Aurora, Colorado New Homes for Sale
Aurora, Colorado New Homes for Sale
3 Bedroom, 2.5 Bath, 3 Car Garage
3193 - Square Feet
$493,700
Model Masterful B - Aurora, Colorado New Homes for Sale
3 Bedroom, 2.5 Bath, 3 Car Garage
3193 - Square Feet
$493,700
Area: Aurora, Colorado
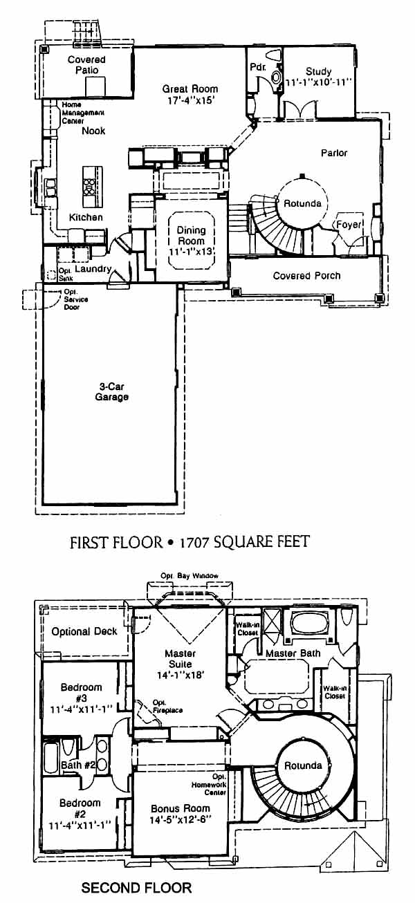
The Masterful is an eloquent statement of character that begins right in the front foyer. Here, a dramatic circular stairway immediately grabs your attention. Throughout, it's the kind of design everyone falls in love with! There are large areas that are ideal for entertaining, while complementing these with intriguing galleries, niches and other charming spaces. For example... the gallery hall, adjacent to the dining room, has a see-through fireplace into the dining room itself... the expansive kitchen not only has a butler's pantry but a large dining area for your family... the comfortable parlor welcomes you just off the main foyer... and there is a side entry garage for elegant curb appeal. This home marries many favorite features of times gone by, with the convenience families expect today. So, of course, both the family room and the master bedroom suite are large (the bedroom has his and her closets) and many options are available to personalize the look and feel of other spaces.
Please complete the form below to get more information on Model Masterful B and other available new home listings from a local Aurora, Colorado Real Estate Agent
Contact a local Aurora, CO Real Estate Agent
(Please enter all fields.)
Masterful B in Aurora
Featured New Home
Featured Real Estate Agents
Mauri Tamborra
RE/MAX Southeast

Phone: (720) 608-2721
Denver, CO
[email protected]
Tom Gross
Kentwood Real Estate

Phone: (303) 502-5984
Greenwood Village, CO
[email protected]
Tatyana and Aaron Storck
Exit Realty DTC

Phone: (720) 636-8887
Englewood, CO
[email protected]
Chad Madlom
Madlom Real Estate

Phone: (720) 689-5000
Greenwood Village, CO
[email protected]
Shawn Engel
RE/MAX Alliance

Phone: (303) 308-8000
Aurora, CO
[email protected]
Featured Mortgage Brokers
- PRIMARY RESIDENTIAL MORTGAGE INC, MANCHESTER, CT
63 E CENTER ST FL 3
MANCHESTER, CT 6040 - Ross Mortgage Corporation, mortgage broker in Royal Oak, MI
27862 Woodward Avenue
Royal Oak, MI 48067 - SYNOVUS MORTGAGE CORP, ROSWELL, GA
10446 ALPHARETTA ST
ROSWELL, GA 30075 - DITECH MORTGAGE CORP, FORT WASHINGTON, PA
1100 VIRGINIA DR STE 100
FORT WASHINGTON, PA 19034 - Harvard Mortgage, mortgage broker in Albuquerque, NM
9551 Paseo del Norte NE
Albuquerque, NM 87122
