Model Brookside
Aurora, Colorado New Homes for Sale
Aurora, Colorado New Homes for Sale
4 Bedroom, 3.5 Bath, 3 Car Garage
3927 - Square Feet
$641,900
Model Brookside - Aurora, Colorado New Homes for Sale
4 Bedroom, 3.5 Bath, 3 Car Garage
3927 - Square Feet
$641,900
Area: Aurora, Colorado
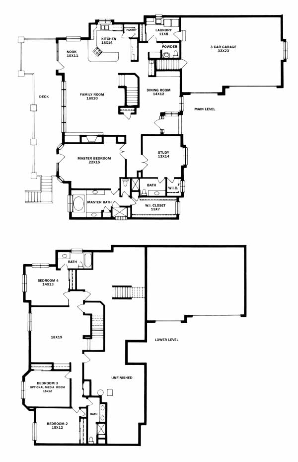
The Brookside is a traditional ranch style home with a partially finished basement. As you enter the formal dining room is to your right with the private study and master suite to your left. The family room is expansive and flows into the nook and kitchen area. The kitchen is complete with GE Profile stainless steel appliances, cherry cabinets, granite countertops, and a walk in pantry. The lower level contains three bedrooms, 2 baths, and a recreation area.
Please complete the form below to get more information on Model Brookside and other available new home listings from a local Aurora, Colorado Real Estate Agent
Contact a local Aurora, CO Real Estate Agent
(Please enter all fields.)
Brookside in Aurora
Featured New Home
Featured Real Estate Agents
Lane Lyon
Coldwell Banker

Phone: (844) 899-9939
Englewood, CO
Mauri Tamborra
RE/MAX Southeast

Phone: (720) 608-2721
Denver, CO
[email protected]
Shawn Engel
RE/MAX Alliance

Phone: (303) 308-8000
Aurora, CO
[email protected]
The Creed Group/Lindsay Mann
The Creed Group

Phone: (720) 903-3654
Aurora, CO
[email protected]
Chad Madlom
Madlom Real Estate

Phone: (720) 689-5000
Greenwood Village, CO
[email protected]
Featured Mortgage Brokers
- MOVEMENT MORTGAGE LLC, RICHMOND, VA
5014 MONUMENT AVE
RICHMOND, VA 23230 - MOVEMENT MORTGAGE LLC, FREDERICKSBURG, VA
4920 SOUTHPOINT DR
FREDERICKSBURG, VA 22407 - VENTA FINANCIAL GROUP INC, LAS VEGAS, NV
1300 S JONES BLVD STE 150
LAS VEGAS, NV 89146 - Priority Mortgage Corp., mortgage broker in Worthington, OH
150 E Wilson Bridge Rd Ste 350
Worthington, OH 43085 - FIRST PRIORITY FINANCIAL INC, ROSEVILLE, CA
1050 OPPORTUNITY DR STE 145
ROSEVILLE, CA 95678
