Model Mesa Verde
Aurora, Colorado New Homes for Sale
Aurora, Colorado New Homes for Sale
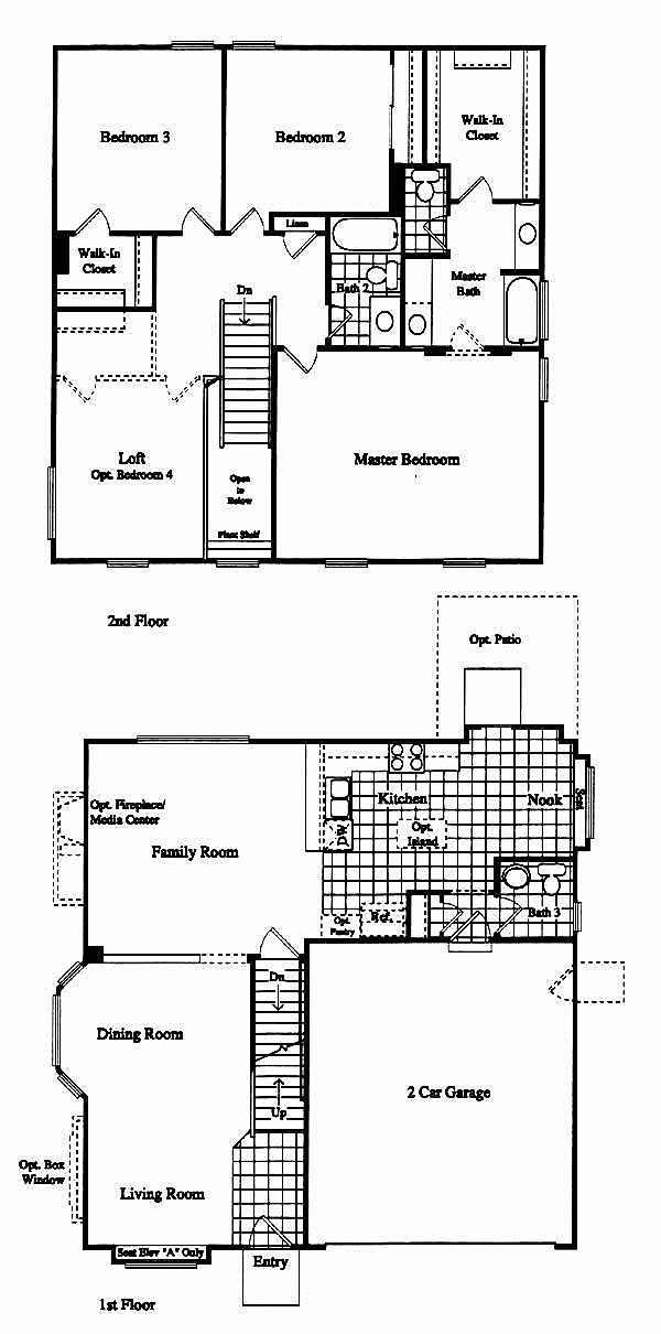
3 Bedroom, 2.5 Bath, 2 Car Garage
2044 - Square Feet
$207,990
Model Mesa Verde - Aurora, Colorado New Homes for Sale
3 Bedroom, 2.5 Bath, 2 Car Garage
2044 - Square Feet
$207,990
Area: Aurora, Colorado
The covered front porch welcomes the family and friends into this unique family home. The dining room has a charming bay window. The large family room is open to the gourmet kitchen and can accommodate multiple family activities. Flexible options are found with either a large loft, or a fourth bedroom on the second level. The master suite is spacious and has a large walk-in closet.
Please complete the form below to get more information on Model Mesa Verde and other available new home listings from a local Aurora, Colorado Real Estate Agent
Contact a local Aurora, CO Real Estate Agent
(Please enter all fields.)
Mesa Verde in Aurora
Featured New Home
Featured Real Estate Agents
Tom Gross
Kentwood Real Estate

Phone: (303) 502-5984
Greenwood Village, CO
[email protected]
Marc Thomas
My Home Realty Group

Phone: (720) 410-5750
Aurora, CO
[email protected]
Shawn Engel
RE/MAX Alliance

Phone: (303) 308-8000
Aurora, CO
[email protected]
Chad Madlom
Madlom Real Estate

Phone: (720) 689-5000
Greenwood Village, CO
[email protected]
Tatyana and Aaron Storck
Exit Realty DTC

Phone: (720) 636-8887
Englewood, CO
[email protected]
Featured Mortgage Brokers
- MOVEMENT MORTGAGE LLC, CHARLOTTESVILLE, VA
2271 SEMINOLE LN
CHARLOTTESVILLE, VA 22901 - PRYSMA LENDING GROUP LLC, DANBURY, CT
10 PRECISION RD STE 2B
DANBURY, CT 6810 - HIGH TECH LENDING INC, CITRUS HEIGHTS, CA
7777 GREENBACK LN STE 210
CITRUS HEIGHTS, CA 95610 - PROFICIO MORTGAGE VENTURES LLC, BRUNSWICK, OH
2950 WESTWAY DR STE 101
BRUNSWICK, OH 44212 - Altamont Mortgage Funding Inc, mortgage broker in Portland, OR
4380 SW Macadam Ave Ste 125
Portland, OR 97239
