Model Plan 3069
Riverside County, California New Homes for Sale
Riverside County, California New Homes for Sale
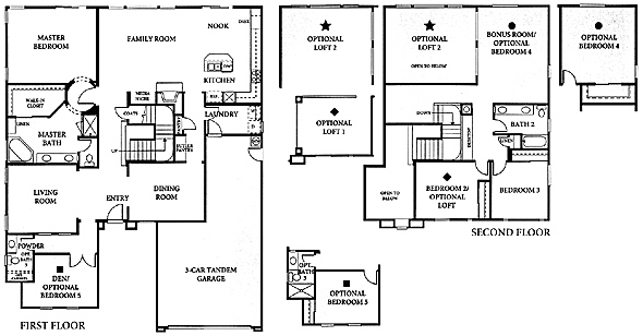
3 Bedroom, 2.5 Bath, 3 Car Garage
3069 - Square Feet
$514,035
Model Plan 3069 - Riverside County, California New Homes for Sale
3 Bedroom, 2.5 Bath, 3 Car Garage
3069 - Square Feet
$514,035
Area: Riverside County, California
Spacious family home with formal living and formal dining rooms. Custom rounded wall corners and convenient indoor laundry room enter downstairs. Master suite through turret hallway and enjoy walk-in closet, oval soaking tub and separate shower. Secondary bedrooms, loft and bonus room, with bedroom options are on upper level.
Please complete the form below to get more information on Model Plan 3069 and other available new home listings from a local Riverside County, California Real Estate Agent
Contact a local Riverside County, CA Real Estate Agent
(Please enter all fields.)
Plan 3069 in Riverside County
Featured New Home
Featured Mortgage Brokers
- UNION MORTGAGE GROUP, INC., GREENBELT, MD
7501 GREENWAY CENTER DR
GREENBELT, MD 20770 - VENTA FINANCIAL GROUP INC, LAS VEGAS, NV
1300 S JONES BLVD STE 150
LAS VEGAS, NV 89146 - ENVOY MORTGAGE LTD, COLORADO SPRINGS, CO
6760 CORPORATE DR STE 130
COLORADO SPRINGS, CO 80919 - PROFICIO MORTGAGE VENTURES LLC, BRUNSWICK, OH
2950 WESTWAY DR STE 101
BRUNSWICK, OH 44212 - LEGACYTEXAS BANK, PLANO, TX
5000 LEGACY DR FL 1
PLANO, TX 75024
