Model Residence 2
University Area, Arizona New Homes for Sale
University Area, Arizona New Homes for Sale
3 Bedroom, 3 Bath, 3 Car Garage
3497 - Square Feet
$757,439
Model Residence 2 - University Area, Arizona New Homes for Sale
3 Bedroom, 3 Bath, 3 Car Garage
3497 - Square Feet
$757,439
Area: University Area, Arizona
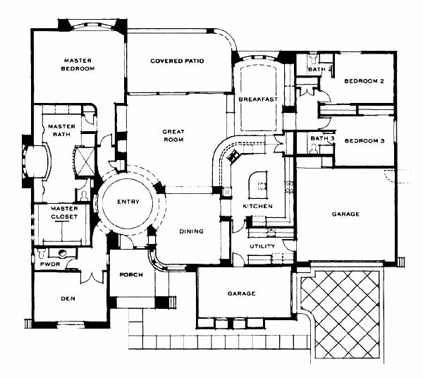
This 3,377 square foot split-plan features three bedrooms and three baths, maximizing all living areas efficiently. A front porch makes an initial positive impression. Just inside a circular entry provides flow to all area of this beautiful plan. The great room and dining room are adjacent to the kitchen and breakfast areas. The master bedroom, master bath and walk-in closet are configured with a den. On the opposite side, two spacious bedrooms with full baths provide plenty of privacy. The rear covered patio can be accessed from the great room and master bedroom. Two garages, accommodating up to three vehicles, and provide access to the utility room that leads to the kitchen area.
Please complete the form below to get more information on Model Residence 2 and other available new home listings from a local University Area, Arizona Real Estate Agent
Contact a local University Area, AZ Real Estate Agent
(Please enter all fields.)
Residence 2 in University Area
Featured New Home
Featured Real Estate Agents
Anna Garcia
Realty Executives Tucson Elite

Phone: (520) 975-2271
Tucson, AZ
[email protected]
Carol Bernard
Long Realty Company

Phone: (520) 260-4164
Tucson, AZ
Marsee Wilhems
RE/MAX Majestic

Phone: (520) 394-4520
Tucson, AZ
Mary Lutheran
Realty Executives Tucson Elite

Phone: (520) 477-0519
Tucson, AZ
Christina Esala
Featured Mortgage Brokers
- EMBRACE HOME LOANS INC, MIDDLETOWN, RI
25 ENTERPRISE CTR
MIDDLETOWN, RI 2842 - VENTA FINANCIAL GROUP INC, LAS VEGAS, NV
1300 S JONES BLVD STE 150
LAS VEGAS, NV 89146 - EVOLVE BANK & TRUST, TULSA, OK
5110 S YALE AVE STE 500
TULSA, OK 74135 - Ross Mortgage Corporation, mortgage broker in Royal Oak, MI
27862 Woodward Avenue
Royal Oak, MI 48067 - PINNACLE CAPITAL MORTGAGE CORPORATION, PUYALLUP, WA
311 RIVER RD STE 202
PUYALLUP, WA 98371

