Model Vista
San Xavier, Arizona New Homes for Sale
San Xavier, Arizona New Homes for Sale
3 Bedroom, 3 Bath, 2 Car Garage
2503 Square Feet
$222,900
Model Vista - San Xavier, Arizona New Homes for Sale
3 Bedroom, 3 Bath, 2 Car Garage
2503 Square Feet
$222,900
Area: San Xavier, Arizona
This gated golf course community features amenities for the whole family. Residents will enjoy the water park, tennis and basketball courts, fully stocked lake which you are able to take small 1-2 person sail boats on. This community has a wonderful rec. center for kids and adults to enjoy. Minutes away from shopping, major highways, trails and more.
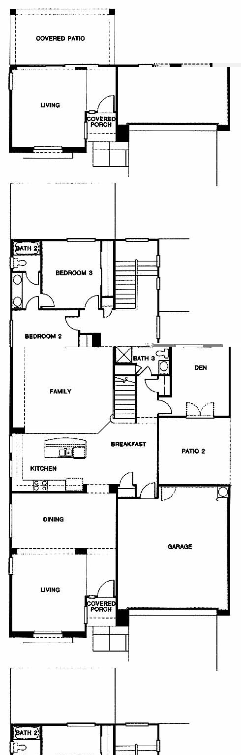
This 2,503 sq' two-story plan offers plenty of interior and exterior room in one plan. The front covered porch opens into a formal living room. A grand arch leads into the spacious dining room. The kitchen includes an island and a breakfast area. The family room looks out to the covered rear patio. A den, bath and private, second patio round out the floor design. A two-car garage is standard. Upstairs, you'll find a master bedroom suite with private bath and walk-in closet, two additional bedrooms, which share a common bath and a convenient utility area. Options include a fourth bedroom in the standard den area, an airy loft, a second story balcony, a patio extension, glass blocks in the master shower and a fireplace in the family room.
Please complete the form below to get more information on Model Vista and other available new home listings from a local San Xavier, Arizona Real Estate Agent
Contact a local San Xavier, AZ Real Estate Agent
(Please enter all fields.)
Vista in San Xavier
Featured New Home
Featured Real Estate Agents
Deborah Ferguson
South Arizona Homes, LLC

Phone: (520) 488-7912
Sahuarita, AZ
[email protected]
Vicki Watson
Coldwell Banker Residential

Phone: (520) 204-3474
Sahuarita, AZ
Michael Rhodes
Corner Connect/ Realty Executives

Phone: (520) 389-6052
Tucson, AZ
Sofia Gil
Realty Executive Tucson Elite

Phone: (520) 490-1370
Green Valley, AZ
[email protected]
Chris Pendleton Team
Tierra Antigua Realty

Phone: (520) 447-1365
Tucson, AZ
[email protected]
Featured Mortgage Brokers
- OPEN MORTGAGE LLC, CORONA, CA
1840 ROCKCREST DR
CORONA, CA 92880 - FIRST PRIORITY FINANCIAL INC, ROSEVILLE, CA
1050 OPPORTUNITY DR STE 145
ROSEVILLE, CA 95678 - CATALYST LENDING INC, GREENWOOD VILLAGE, CO
6530 S YOSEMITE ST STE 310
GREENWOOD VILLAGE, CO 80111 - Altamont Mortgage Funding Inc, mortgage broker in Portland, OR
4380 SW Macadam Ave Ste 125
Portland, OR 97239 - NEIGHBORS FINANCIAL CORP, SACRAMENTO, CA
2831 G ST STE 200
SACRAMENTO, CA 95816
