Model Vientos
Pima Southeast Tucson, Arizona New Homes for Sale
Pima Southeast Tucson, Arizona New Homes for Sale
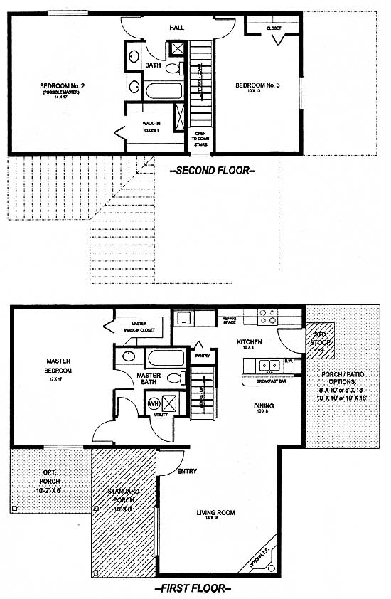
3 Bedroom, 2 Bath, 2 Car Garage
1566 - Square Feet
$188,617
Model Vientos - Pima Southeast Tucson, Arizona New Homes for Sale
3 Bedroom, 2 Bath, 2 Car Garage
1566 - Square Feet
$188,617
Area: Pima Southeast Tucson, Arizona
Spectacular Old Pueblo architecture embodies this two-story home. The spacious design utilizes the classic Arizona open floor plan with rough sawn plank ceilings with beams in the living room and a beautiful kitchen with oak cabinets and a microwave oven. Plenty of room with walk-in closets in both the master suite and second bedroom. Corrugated steel roofed porches, block walled courtyards, and a solar water heater.
Please complete the form below to get more information on Model Vientos and other available new home listings from a local Pima Southeast Tucson, Arizona Real Estate Agent
Contact a local Pima Southeast Tucson, AZ Real Estate Agent
(Please enter all fields.)
Vientos in Pima Southeast Tucson
Featured New Home
Featured Mortgage Brokers
- Mainstream Funding Network, Inc., mortgage broker in Williamsville, NY
5586 Main St.
Williamsville, NY 14221 - 203K.TV, LAGUNA HILLS, CA
22501 CAMINITO COSTA
LAGUNA HILLS, CA 92653 - MCCUE MORTGAGE COMPANY, NEW BRITAIN, CT
1 LIBERTY SQ
NEW BRITAIN, CT 6051 - W J BRADLEY MORTGAGE CAPITAL, LLC, PLAINFIELD, IL
2011 S ROUTE 59
PLAINFIELD, IL 60586 - Consolidated Loan Company of Albany- Home Office, mortgage broker in Albany, GA
430 W Tift Ave
Albany, GA 31701
