Model Plan 45-2787
Phoenix, Arizona New Homes for Sale
Phoenix, Arizona New Homes for Sale
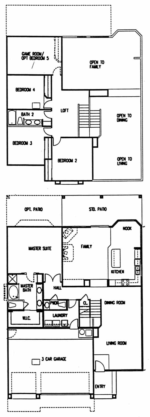
4 Bedroom, 2.5 Bath, 3 Car Garage
2787 - Square Feet
$363,815
Model Plan 45-2787 - Phoenix, Arizona New Homes for Sale
4 Bedroom, 2.5 Bath, 3 Car Garage
2787 - Square Feet
$363,815
Area: Phoenix, Arizona
This home is two-stories of delightful, Arizona living. From the spacious family room, gourmet kitchen with serving island, living and dining rooms that all feature open ceilings, to the upstairs loft with its many spacious bedrooms and even a game room. A master suite with deluxe bath featuring a garden tub, separate shower and walk in closet round off this homes features. Found in a charming, gated community that is located near to shopping and areas of recreation.
Please complete the form below to get more information on Model Plan 45-2787 and other available new home listings from a local Phoenix, Arizona Real Estate Agent
Contact a local Phoenix, AZ Real Estate Agent
(Please enter all fields.)
Plan 45-2787 in Phoenix
Featured New Home
Featured Real Estate Agents
Jason Penrose
RE/MAX Excalibur

Phone: (602) 497-2083
Scottsdale, AZ
[email protected]
Bobby Lieb
HomeSmart

Phone: (602) 376-1341
Phoenix, AZ
The Kodi Riddle Team, Riddle Realty
The Kodi Riddle Team, Riddle Realty

Phone: (480) 725-2419
Cave Creek, AZ
[email protected]
Cindy Herrera
Essential Properties Inc.

Phone: (623) 552-6348
Goodyear, AZ
Arizona Best Real Estate
Arizona Best Real Estate

Phone: (800) 366-8064
Scottsdale, AZ
Featured Mortgage Brokers
- COBALT MORTGAGE, EVERETT, WA
2825 COLBY AVE STE 305
EVERETT, WA 98201 - BANK OF AMERICA NA CHARLOTTE, FOREST HILLS, NY
10510 QUEENS BLVD STE 2
FOREST HILLS, NY 11375 - REVERSE MORTGAGE SOLUTIONS INC, BETHESDA, MD
6701 DEMOCRACY BLVD STE 300
BETHESDA, MD 20817 - EVOLVE BANK & TRUST, TULSA, OK
5110 S YALE AVE STE 500
TULSA, OK 74135 - PRIMELENDING A PLAINSCAPITAL COMPANY, GLEN ALLEN, VA
4198 COX RD STE 113
GLEN ALLEN, VA 23060
