Model Persimmon
Glendale, Arizona New Homes for Sale
Glendale, Arizona New Homes for Sale
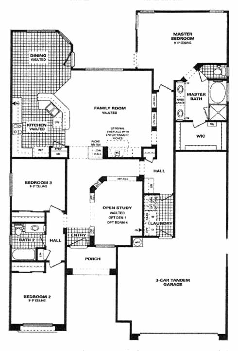
3 Bedroom, 2 Bath, 3 Car Garage
2000 - Square Feet
$191,290
Model Persimmon - Glendale, Arizona New Homes for Sale
3 Bedroom, 2 Bath, 3 Car Garage
2000 - Square Feet
$191,290
Area: Glendale, Arizona
This community is conveniently located within miles of the freeway, downtown, shopping and entertainment.
The tiled entry flanked by the 2nd and 3rd bedrooms and study takes you into the family room with optional fireplace. From here you can access the kitchen with dining area and the huge master bedroom and bath with a walk-in closet.
Please complete the form below to get more information on Model Persimmon and other available new home listings from a local Glendale, Arizona Real Estate Agent
Contact a local Glendale, AZ Real Estate Agent
(Please enter all fields.)
Persimmon in Glendale
Featured New Home
Featured Real Estate Agents
Jake Wright
Jake Wright, Realtor/Broker

Phone: (855) 622-6769
Glendale, AZ
Melissa Dierks
RE/MAX Professionals

Phone: (623) 295-0516
Glendale, AZ
[email protected]
Brent Kastanowski
Realty ONE Group

Phone: (602) 380-2049
Glendale, AZ
[email protected]
Susan Ramsey
Keller Williams Prof. Partners

Phone: (602) 497-1498
Glendale AZ 85308, AZ
Justin Schlegel
RE/MAX Preferred Choice

Phone: (623) 203-2264
Glendale, AZ
[email protected]
Featured Mortgage Brokers
- GENERATION MORTGAGE COMPANY, ATLANTA, GA
3 PIEDMONT CTR NE STE 300
ATLANTA, GA 30305 - ACADEMY MORTGAGE CORPORATION, CINCINNATI, OH
11590 CENTURY BLVD STE 112
CINCINNATI, OH 45246 - SYNOVUS MORTGAGE CORP, ROSWELL, GA
10446 ALPHARETTA ST
ROSWELL, GA 30075 - BancOhio Financial, mortgage broker in Powell, OH
285 S Liberty St
Powell, OH 43065 - GENERATION MORTGAGE COMPANY, HILO, HI
1257 KILAUEA AVE STE 30
HILO, HI 96720
