Model Plan 3562
Prichard, Alabama New Homes for Sale
 
                                                                                        
                                        Prichard, Alabama New Homes for Sale
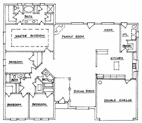
                                            4 Bedroom, 3 Bath, 2 Car Garage
3000 - Square Feet
$185,900
                                            
Model Plan 3562 - Prichard, Alabama New Homes for Sale
                                        4 Bedroom, 3 Bath, 2 Car Garage
3000 - Square Feet
$185,900
Area: Prichard, Alabama
This community is set among rolling hills, giving it a private country setting where you can raise a family. Streetlights throughout add to the safety of the neighborhood. Close to area shopping and restaurants.
This home includes a dining room to one side of the foyer entrance that overlooks the spacious family room with fireplace. The nook leads to the kitchen with walk-in pantry and island workspace. The master bedroom includes his and her walk-in closets and a master bath with double vanity, tub and separate shower. Three more bedrooms and two baths provide plenty of space and privacy for everyone in the family.
Please complete the form below to get more information on Model Plan 3562 and other available new home listings from a local Prichard, Alabama Real Estate Agent
Contact a local Prichard, AL Real Estate Agent
(Please enter all fields.)
Plan 3562 in Prichard
Featured New Home
 
								Featured Real Estate Agents
Terry Trotter
Keller Williams Realty
                                            
                                            Phone: (855) 910-7479
                                            Mobile,  AL
                                                                                        
Clifton Henderson
A Prime Properties Group llc
                                            
                                            Phone: (251) 422-0062
                                            Fairhope,  AL
                                                                                        [email protected]
                                                                                        
Cassandra Curtis
Clear Path Realty
                                            
                                            Phone: (251) 270-0803
                                            Mobile,  AL
                                                                                        
Debbie Gabel
RE/MAX SELECT
                                            
                                            Phone: (251) 270-0296
                                            MOBILE,  AL
                                                                                        [email protected]
                                                                                        
Don Mayes
Keller Williams Realty Mobile
                                            
                                            Phone: (251) 289-1112
                                            Mobile,  AL
                                                                                        [email protected]
                                                                                        
Featured Mortgage Brokers
- Harvard Mortgage, mortgage broker in Albuquerque, NM
 9551 Paseo del Norte NE
 Albuquerque, NM 87122
- EMBRACE HOME LOANS INC, MIDDLETOWN, RI
 25 ENTERPRISE CTR
 MIDDLETOWN, RI 2842
- Altamont Mortgage Funding Inc, mortgage broker in Portland, OR
 4380 SW Macadam Ave Ste 125
 Portland, OR 97239
- Blue Square Mortgage LLC, mortgage broker in Seattle, WA
 4212 33rd Ave W
 Seattle, WA 98199
- REVERSE MORTGAGE SOLUTIONS INC, NEWBURGH, NY
 700 CORPORATE BLVD
 NEWBURGH, NY 12550
